Metal fabric also named architectural mesh or create weave mesh, because most of them are made of stainless steel wire or cable, so we also can call them stainless steel wire cloth. These years our stainless steel architectural mesh has been enquirer and adopted more and more in the architectural decoration field, whatever on the material , good flexibility, strength with its versatility, unique texture, variety of colors and durability.
To ensure that architects and designers choose patterns and attachments that are compatible upon installation, QINGFA provides a simple user-friendly process which effectively integrates every aspect of a metal fabric system for its intended application.
Metal fabric also named architectural mesh or create weave mesh, because most of them are made of stainless steel wire or cable, so we also can call them stainless steel wire cloth. These years our stainless steel architectural mesh has been enquirer and adopted more and more in the architectural decoration field, whatever on the material , good flexibility, strength with its versatility, unique texture, variety of colors and durability.
Mesh & Attachment Gallery
To ensure that architects and designers choose patterns and attachments that are compatible upon installation, QINGFA provides a simple user-friendly process which effectively integrates every aspect of a metal fabric system for its intended application.
To ensure that you specify the right QINGFA Architectural solution appropriate for your specific application and design vision, it's important to specify your solution following these easy steps:
1. Identify an application category – Determine which application category best matches your needs:
Landscape Interiors – creates and sculpts space, clads walls, ceilings, columns, doors and counters
Mesh Defense – provides safety, security or protection from high winds
Mesh miscellaneous – custom applications for your project
Mesh FX – delivers elements of corporate identity using light, etching or painting
Parkade – architectural mesh cladding material for open parking structures
Shade – shades sun, reduces light pollution
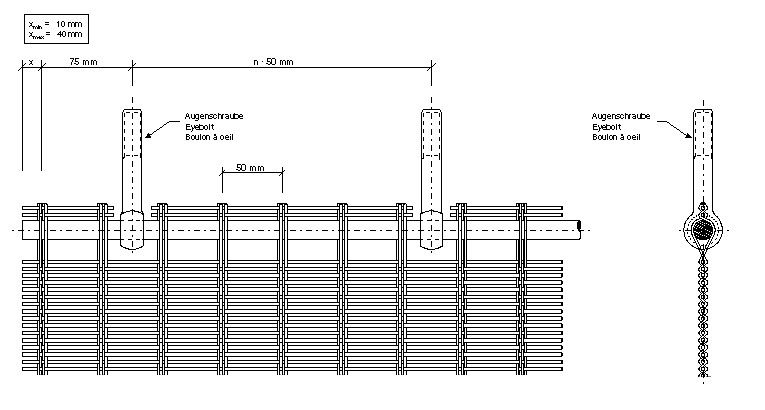
2. Select an installation type compatible with your solution – Please see the metal fabric solution, there are some of our accessories and installation solutions. you will see how the metal fabric is installed and its installed appearance.
3. Choose a metal fabric pattern . – The metal fabric pattern is what the weave looks like and how it behaves. Solutions compatible with the mesh are noted with the above symbols.
We're open to your ideas – Even if you have a specific customized requirement, we will work with you to meet your needs.
Installation




